We would like to provide you with a quick update on the status of our Development Application (DA) for the Queensland Nepalese Cultural Centre.
After submitting our DA to Logan City Council, we received a request for additional information. This required extra work, including flood modeling, architectural design changes, and adjustments to civil engineering and environmental aspects.
To meet these requirements, we engaged several consultants. Our planner has now submitted the response to the council’s request on March 6, 2025.
Next Steps: Public Notification
As per the regulations, the public notification process will start on Tuesday, March 18, 2025.
- A public notification sign will be placed on-site.
- A formal notice will be published in next week’s local newspaper.
- The sign will remain on-site for 15 business days, allowing the public to submit their feedback to Logan City Council.
- Once the public notification period ends, the council will review all submitted information and make a formal decision on our DA. We expect the process to be completed within the next 3–4 months.
Fingers crossed! We are hopeful for a positive outcome.
Your Support is Needed
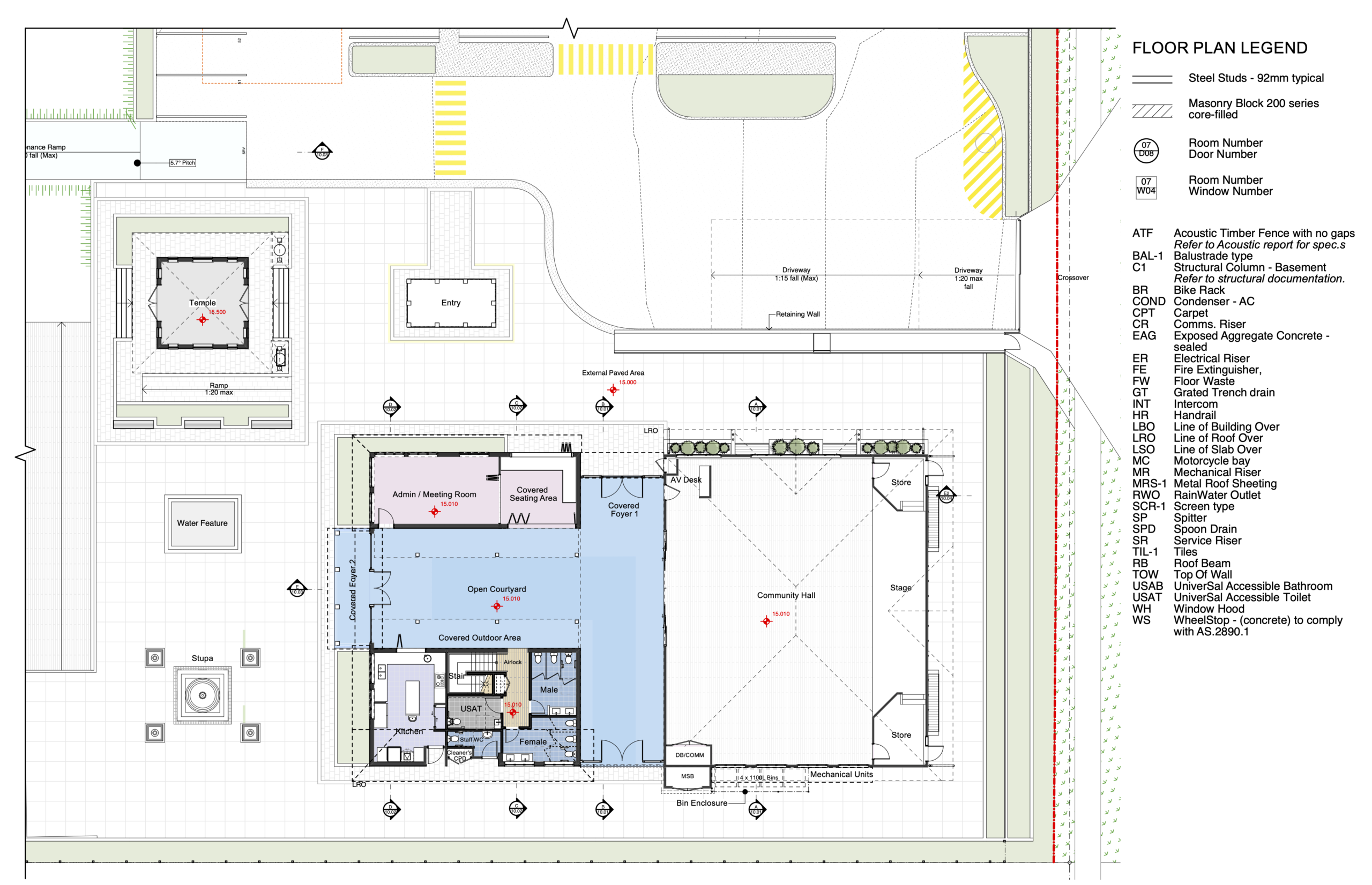
Please find below some design images of the Queensland Nepalese Cultural Centre.
Preparing the DA has been a costly process, as we had to hire several consultants. Since purchasing the property, we have not run any major fundraising initiatives, and we now urgently need funds to complete the DA process.
We kindly request your support at this critical stage. Together, we can achieve the dream we have all been working towards.
How You Can Help:
- Become a Life Member – If you are not a life member yet, please consider joining.
- Donate to QNCC – Any amount would be greatly appreciated.
Thank you for your continued support!

A view of the entire premises from the road, looking towards the carpark. 
A view of the entire premises from the road. 
Front view of the hall 
View from the road 
A view from the falcha (pati) looking towards the entrance of the main building 
A view looking towards the entrance of the hall shows the hall on the right-hand side. 
View from the entrance to the hall 
View from the rear of the hall 
A view from the side of the temple looking towards the stupa 
View from the rear of the hall 
View from the entrance from the car park 
Close view from the front of the temple 
View from the car park 
View from the entrance 
A view of the carpark from the road. 
Layout plan 




